Distriksskole
Utomhusplan
Elven som renner fra øst til vest deler tomten i to, og er en kvalitet som gir området et særpreg. For å utnytte denne kvaliteten ble fokuset satt på elven ved å bygge på hver side av den. Dette ønsket impliserte et krav om tilgjengelighet på tvers av elven, løst ved hjelp at to fire meter høye fagverkskonstruksjoner. Disse ble, i tillegg til å skape tilgjengelighet over elven, konstruksjoner som rommer bibliotek i vest og lærerværelse og et klasserom i øst. Fagverkets utforming sørger for store åpninger i den innglasserte fasaden som gir et transparent og lett uttrykk. Grepet skaper transparens og et lett uttrykk som respekterer elven og dens naturlige retning, samtidig som den gjorde elven til et sentralt blikkfang.
Teknisk snitt
Plan 1.etg klasserom
Plan 2.etg klasserom
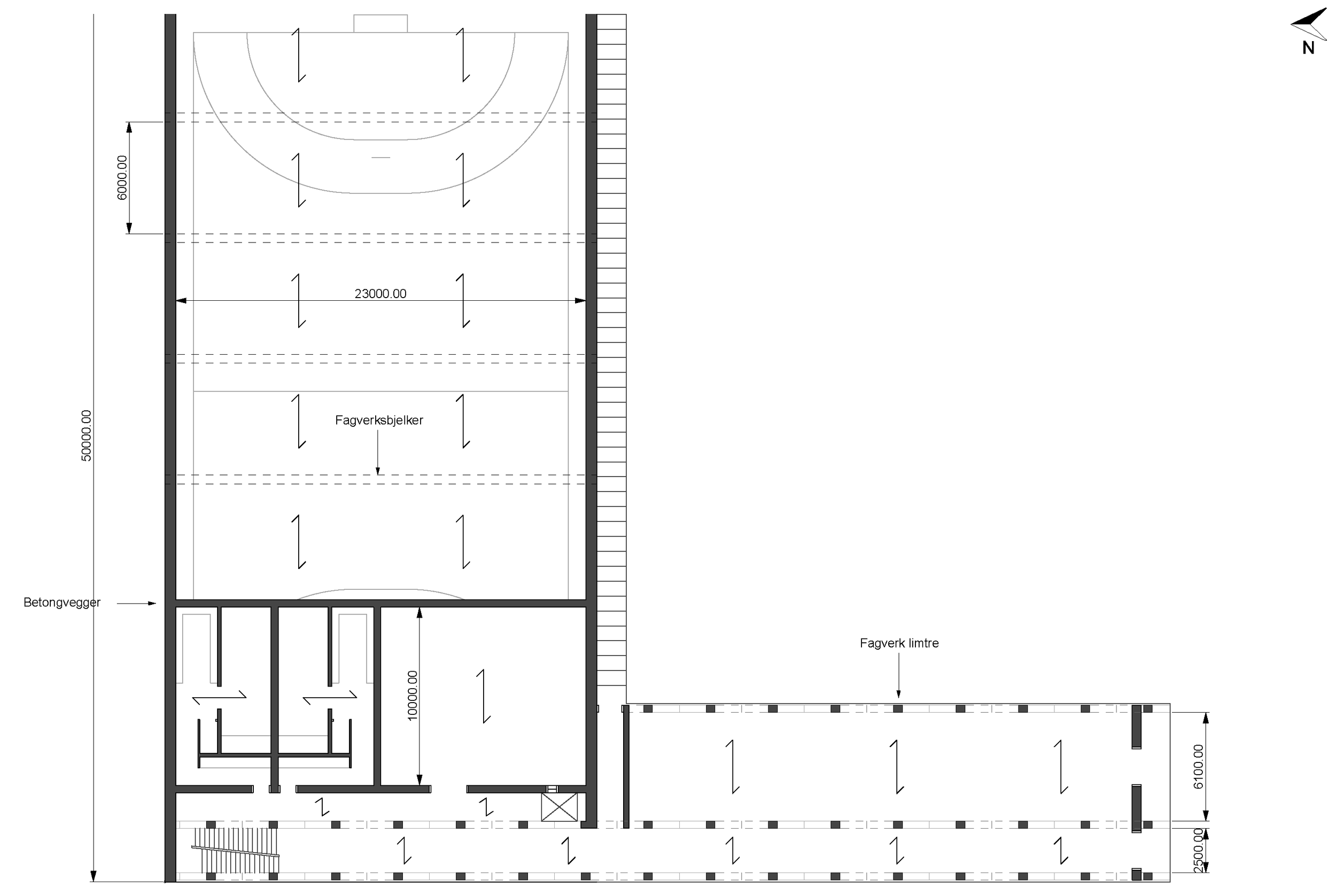
Snitt flerbrukshall
Som et tilskudd til lokalsamfunnet ble det tilrettelagt for en stor flerbrukshall som kunne tjene skolen på dagtid og innbyggerne resten av dagen. For å unngå at det store volumet ble for prangende er det dels gravd inn i den bratte nordsiden da dette frigjorde plass på tomten og utnyttet den ellers krevende bakken. På grunn av høydeforskjellene er volumene flere steder gravd ned i grunnen. Betongvegger brukes for å tilføre tilstrekkelig stabilitet og for å stå imot jordtrykket. Med fagverk som utgangspunkt ble også dette implementert i flerbrukshallen for å ta det 23 meter lange spennet. Fagverket i øst er også koblet til den tre etasjes høye «klasseromsdelen» som huser de fleste undervisningsrommene og sfo. Skolebyggets volumer danner en u-formsom gir skolen en tydelig forside mot sør. Samtidig skaper utformingen også en omkransende effekt for elevene og gir skolen visse avgrensninger.
Plan 1.etg flerbrukshall
Skisse
Fasade, vest
Snitt
Klasserom
Plan 2.etg flerbrukshall
Plan 3.etg klasserom
Plan 3.etg flerbrukshall
Takplan
Samarbeidspartner: Johan August Skjømming
Type prosjekt: Barneskole
Sted: Tretten, Øyer
Semester: Vår 2022

