Back Street Building
Nordre Torv, Hønefoss, 1910
Axo, riving
Bakgården
Historiske bysentrum i landlige Norge består ofte av en rad med bygninger som rammer inn det sentrale byrommet. Dette skaper en intim relasjon mellom fasadene mot gaten og de tilhørende bakgårdene. I områder hvor bysentrum er flyttet og utviklingen har stanset, har gatefasadene ofte bevart sin kvalitet, mens bakgårdene har blitt neglisjert.
Med et stadig økende behov for fortetting, hvordan kan nye boliger i slike områder utformes for å bevare karakteren til eksisterende strukturer, som staller og garasjer, samtidig som de harmonerer med uttrykket til de offentlige fasadene? Kan den urbane boligskalaen som kreves for å oppnå tilstrekkelig fortetting, tilpasses mindre strukturer som opprinnelig hadde helt andre formål?
Situasjonsplan
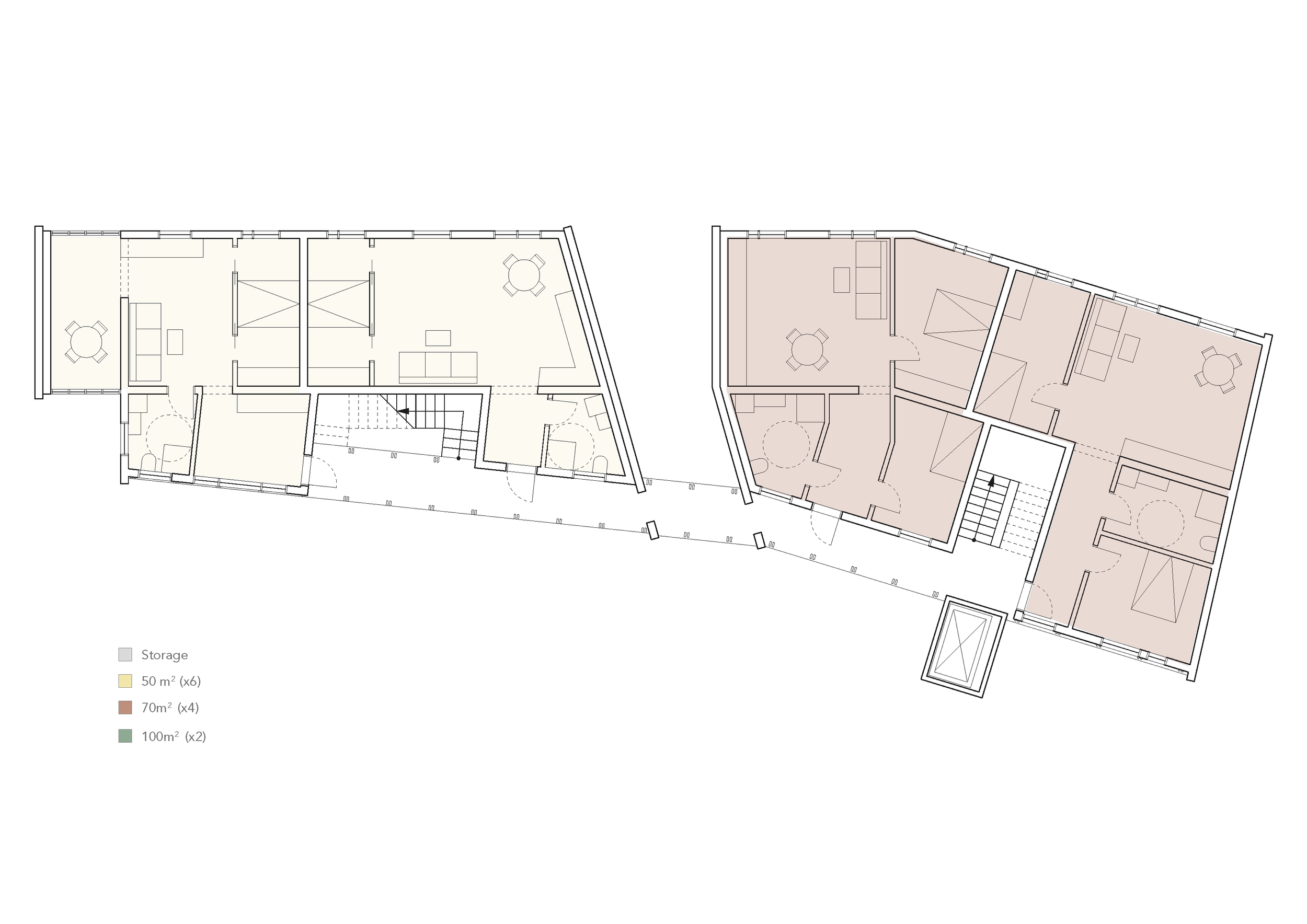
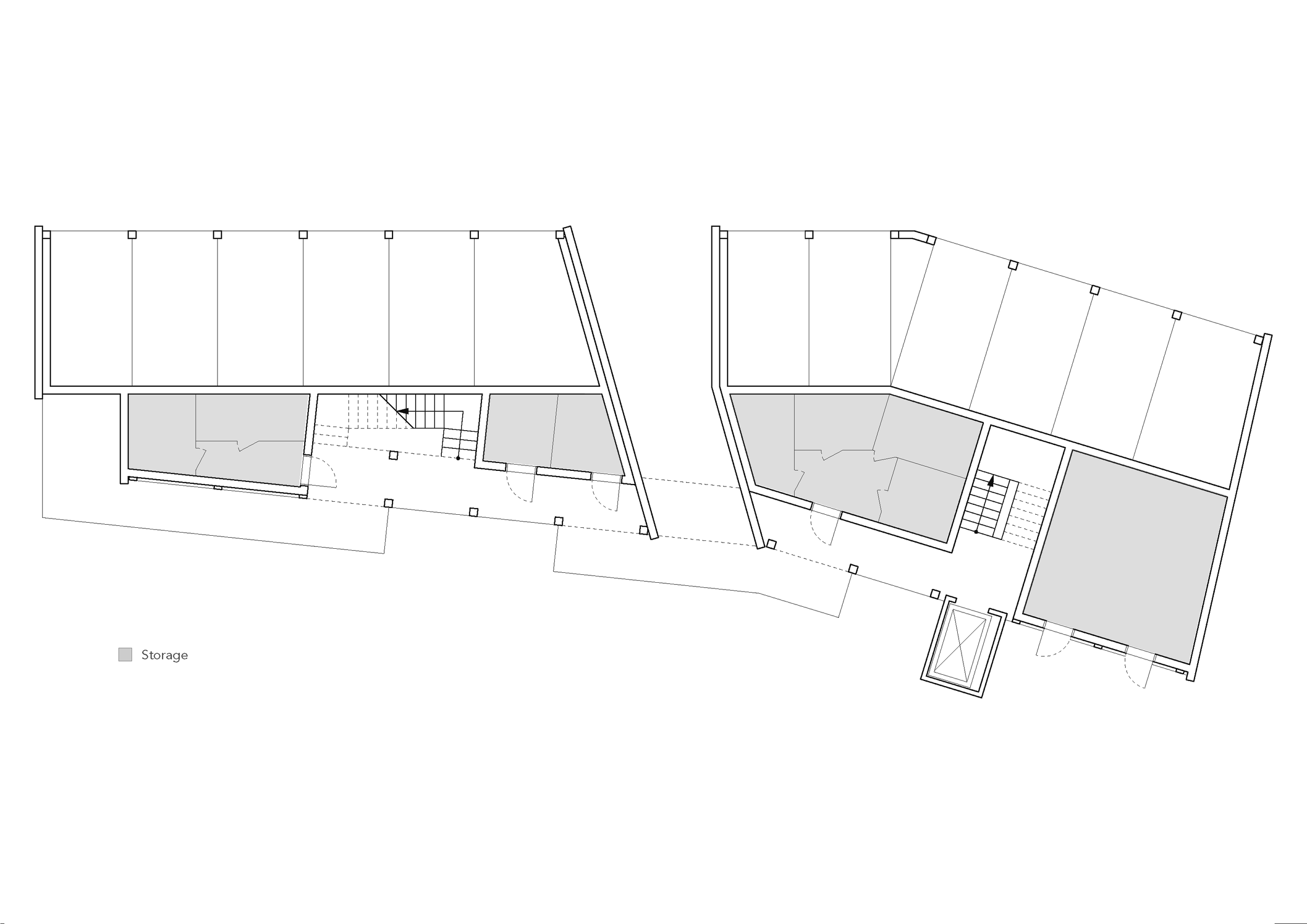
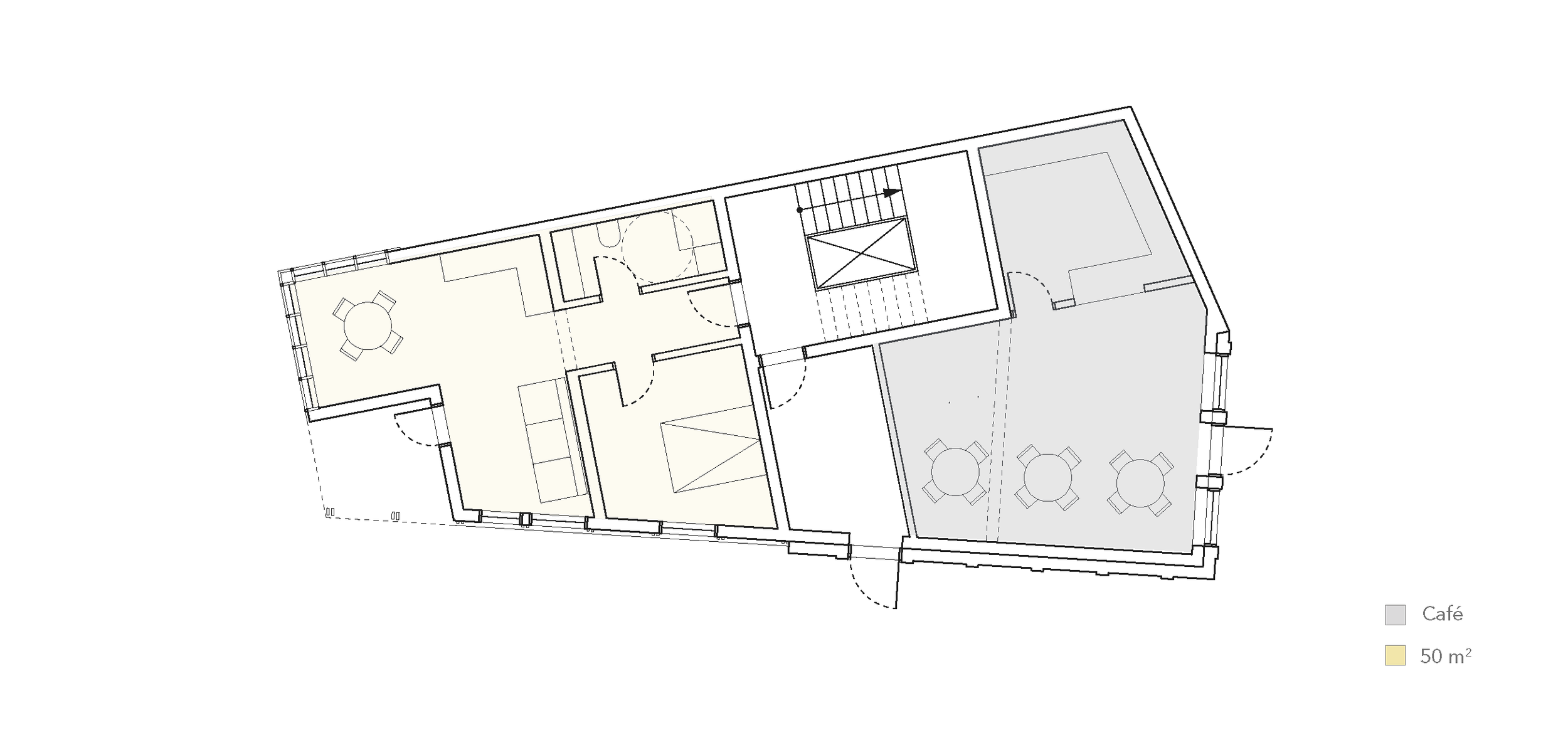
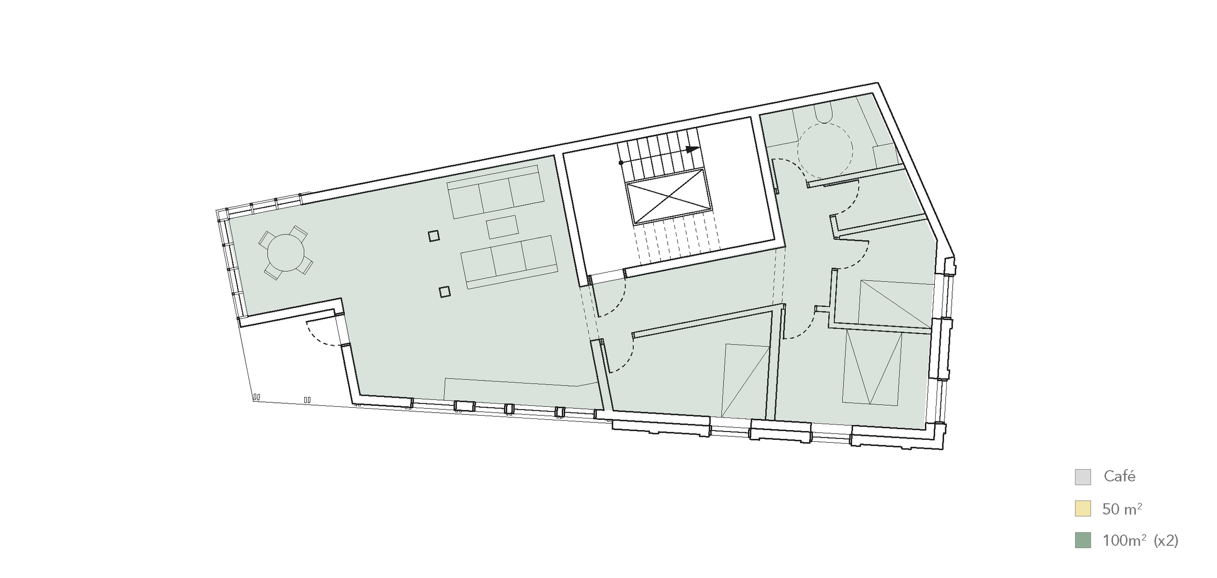
Plan bakgårdsbygg, 1.etg
Fasadeuttrykk basert på bakgårdsgarasje
Samarbeidspartner: Martine Beitohaugen
Type prosjekt: Leilighetskompleks
Sted: Nordre Torv, Hønefoss
Semester: Høst 2024
Plan bakgårdsbygg, 2-3.etg
Snitt bakgårdsbygg
Axo, nytt
Fasade infillbygg, sør
Snitt infillbygg
Plan infill bygg, 2-3.etg
Fasade bakgårdsbygg, sør
Plan infill bygg, 4.etg
Fasade bakgårdsbygg, øst
Aksen fra torget
Plan infill bygg, 1.etg
Fasade infillbygg, vest
Fasade bakgårdsbygg, vest
Aksen fra bakgården
Nordre Torv bakgård, 2024

