Housing Exhibition Studio
Fase 1, Boligundersøkelse
Oppgaven startet med en grundig analyse av eksisterende minimumsboliger i Oslo. Oppmålinger, beboerundersøkelser og møbleringsdokumentering ble gjennomført for å gi innsikt i hvordan boligmarkedet påvirker bokvaliteten.
Finn.no annonse
Virkelig bosituasjon
Finn.no annonse
Virkelig bosituasjon
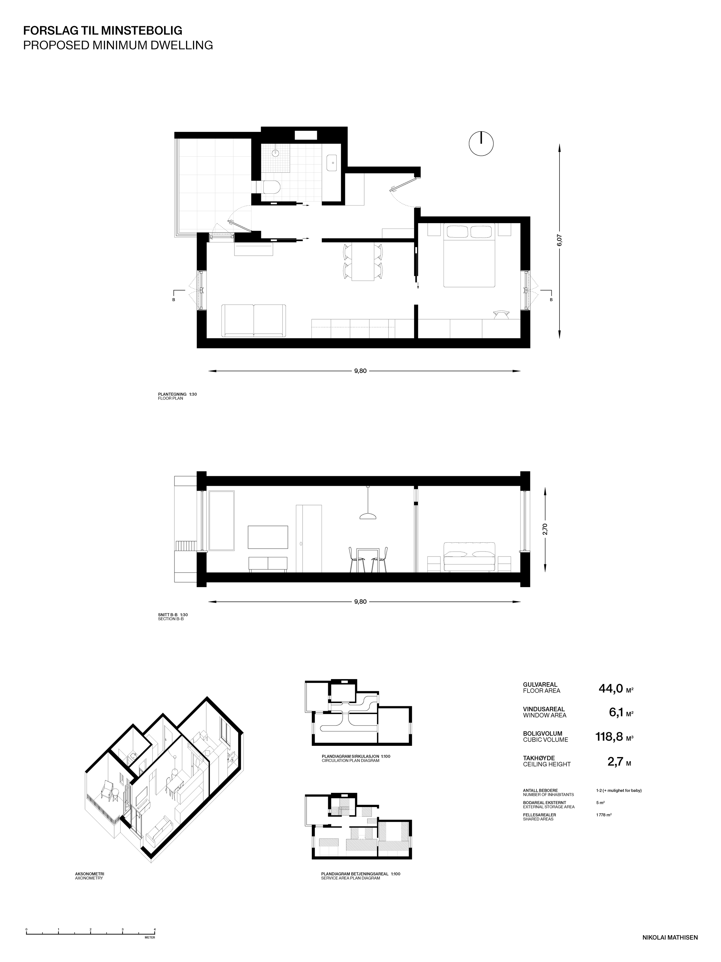
Plansje 1: Tyologi
Dokumentert minimumsbolig
Dokumentert minimumsbolig
Plansje 2: Leiligheten
Oppmåling av bolig
Oppmåling av bolig
Plansje 3: Visualisering
Fase 3, Utstillingen
Studiokurset delte sine funn i en offentlig boligutstilling på St. Olavs plass den 13-29. februar 2025.
Type prosjekt: Bolig (leilighetsplan)
Sted: Ensjø, Oslo
Semester: Vår 2025

