The Industrial Harbour as Urban Space
Holmen, Drammen
Prosjektet foreslår et alternativ til tradisjonell havneutvikling ved å integrere offentlige byfunksjoner i en aktiv industrihavn. I stedet for å erstatte industrien med eiendomsdrevne bolig- og næringsprosjekter, undersøker arbeidet hvordan industriarven kan danne grunnlag for et robust og inkluderende byliv.
Prosjektet er lokalisert på Holmen – en havneøy i Drammen som får en stadig mer sentral rolle i byen. Gjennom fem arkitektoniske inngrep transformeres eksisterende bygninger og uteområder, bundet sammen av en ny, offentlig sjøpromenade. Samlet tilfører grepene kulturelle, sosiale og rekreative funksjoner, åpner strandlinjen for allmennheten og viser en måte å utvikle havneområder på som tar vare på stedets industrielle identitet.
Holmen i Drammen
Holmen 1939
Holmen Marina
Holmen Marina transformeres til et sted man ankommer, ikke bare passerer gjennom. Prosjektet gir båtkulturen i byen en sterkere offentlig tilknytning, og marinaen en ny sosial tilstedeværelse i byen. Prosjektet gjør plassen til et samlingspunkt, en aktiv kant der sport, sosiale møteplasser og havnens kultur møtes.
Totalt prosjektareal (på land): 7 500 m²
Programfordeling: Servering 170 m², Båtklubb 140 m² og offentlige funksjoner 30 m²
Tilgjengeliggjort sjøfront: 200 m
Visualisering marina
Havnepromenaden
Det sammenhengende plassrommet langs vannkanten binder sammen de forskjellige delene i prosjektet, åpner det som tidligere var utilgjengelige områder for offentligheten. Strandlinjen kobler seg på byens overordnede gangforbindelser og blir del av Drammens utbredte nettverk av stier langs vannkanten. Den knytter marinaen, kulturarenaen, flerbrukshallen og parken sammen i en helhetlig sekvens, samtidig som spor av stedets industrielle historie synliggjøres langs vannkanten. Rommet beriker hverdagens bevegelser og skaper nye måter å oppleve Holmen på som en levende og tilgjengelig del av byen.
Lengde: 600 m
Sti forbi Kulturarenaen
Visualisering, Sti
Visualisering, Sti
Snitt
Plan 1.etg
Visualisering, Kulturarena
Situasjonsplan, Flerbrukshallen
Snitt
Siituasjonsplan
Visualisering
Plan 2.etg
Situasjonaplan, marina
Logistikknutepunket Holmen
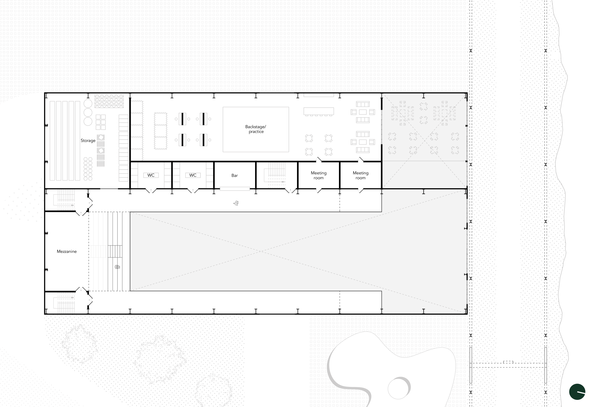
Drammen Kulturarena
Den ikoniske industrielle produksjonshallen transformeres til et offentlig kulturbygg byen lenge har manglet. Hallens sterke uttrykk i bybildet gjør den til en naturlig vert for et nytt offentlig rom, og lar Holmens fremvoksende identitet utvikle seg rundt denne velkjente strukturen.
Totalt fotavtrykk: 2 500 m²
Bruttoareal (BTA): 4 200 m²
Takhøyde: 18 m (stor hall) / 5 m (liten hall)
Plan 1.etg
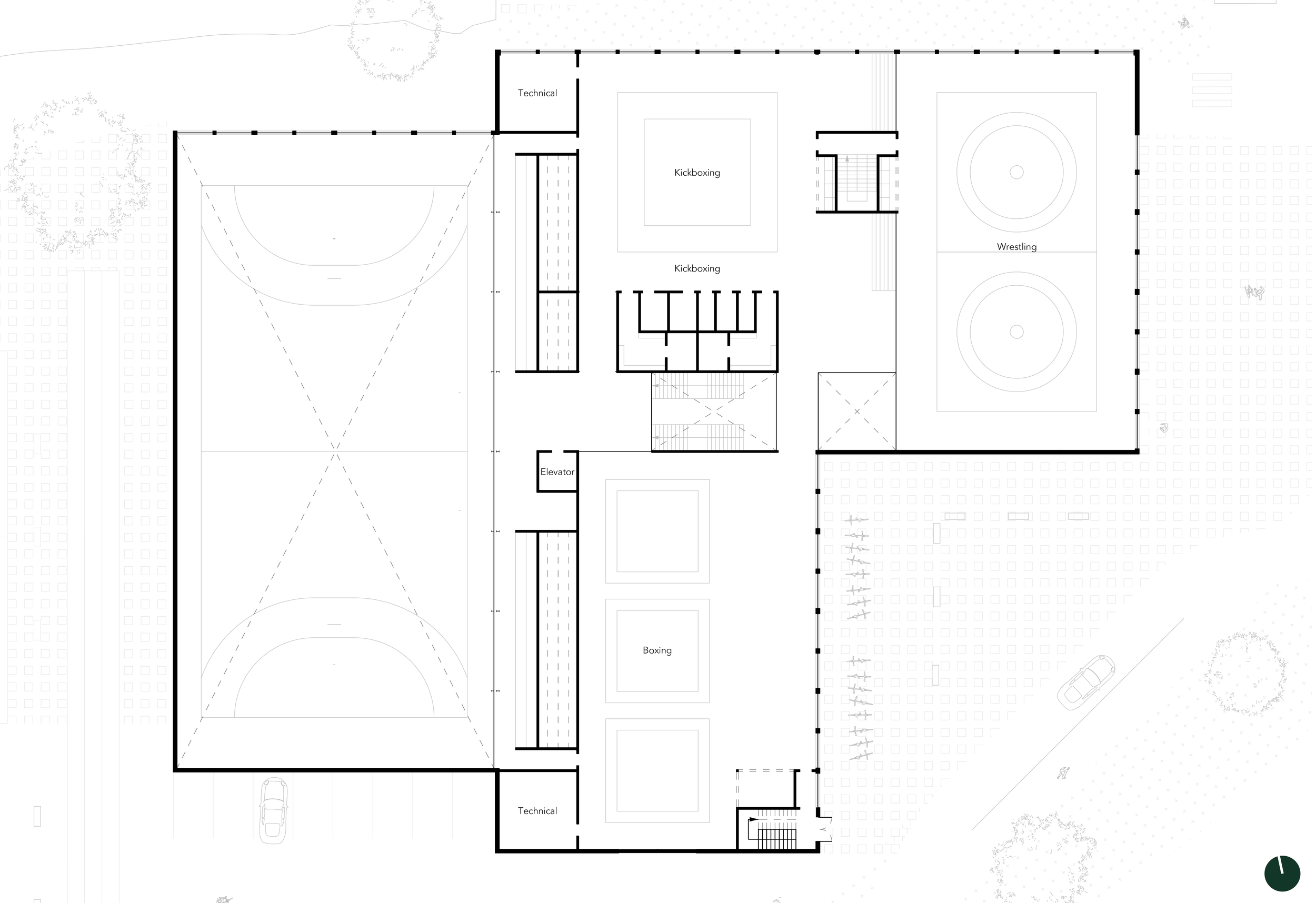
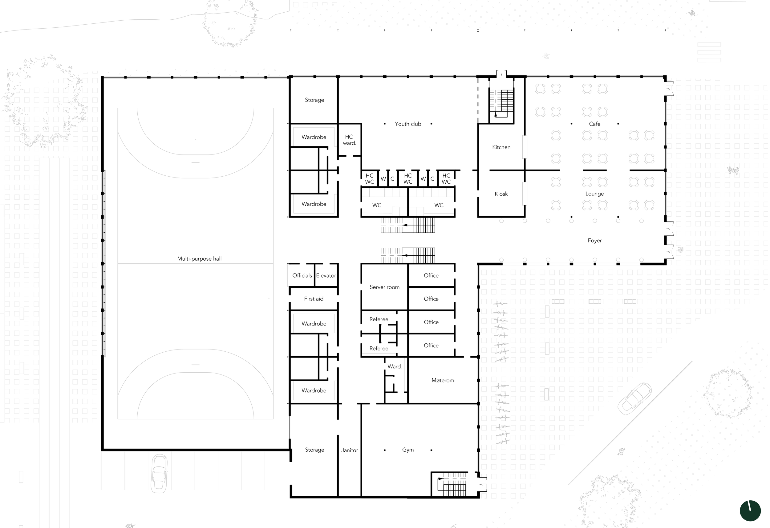
Drammen Flerbrukshall
Med utgangspunkt i sin sentrale posisjon i områdets fremtidige mobilitetsnettverk, introduserer den andre industrihallen et etterspurt sosialt program fra kommunen. Hallen blir et tilgjengelig og offentlig samlingspunkt som tilfører hverdagsaktivitet og langsiktig samfunnsverdi til den fremvoksende bydelen.
Totalt fotavtrykk: 3 000 m²
Bruttoareal (BTA): 4 900 m²
Takhøyde: 8 m (hovedhall), 4,8 / 3,8 m (kampsport)
Visualisering Flerbrukshallen
Type prosjekt: Urbanisme/ Byutvikling
Sted: Holmen, Drammen
Masteroppgave: Høst 2025
Holmenplassen
Til slutt transformeres uteplassen mellom de to industribyggene til et offentlig rom som støtter og forlenger funksjonene til begge hallene. Den store åpne flaten introduserer nye muligheter for sport, samlinger og annen offentlig bruk. Introduksjonen av grønn vegetasjon gjør området til et generøst pusterom i de ellers grå omgivelsene på Holmen.
Totalt areal: 6 000 m²
Andel grøntareal: 40 %
Aktiviteter: 5 (lekeplass, skateboard, basketball, løpebane og bordtennis)
Holmen 2025
Modellfoto marina
Modellfoto sti
Sti gjennom Flerbrukshallen
Modellfoto, Kulturarena
Plan 2.etg
Plan 3.etg
Snitt
Modellfoto

