Sognsveien 80
Dårlig tilgjengelighet, Fjerner to bygg, Åpner ny bevegelse, Bygg i dårlig stand, Renere uttrykk, Nye bygg
Strategisk situasjonsplan
Oppriss/ snitt, tomt
Oppriss, tomt
1.etg plan
Program
Kulturbygg
Diverse Lokaler
Blindern VGs
Konferansehotel
Veggsnitt
Oppriss, Skole
Langsnitt, Skole
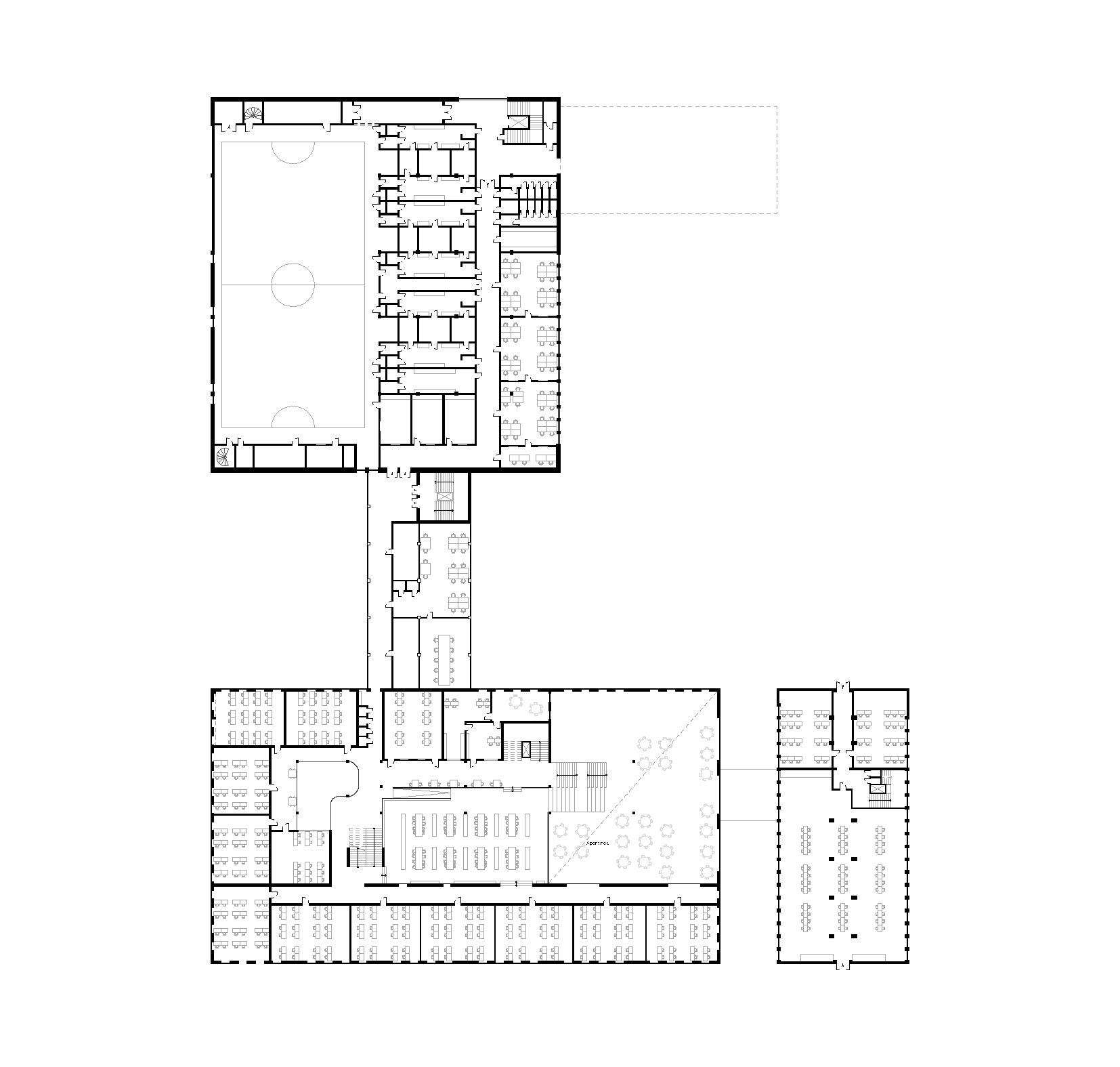
Plan 1.etg
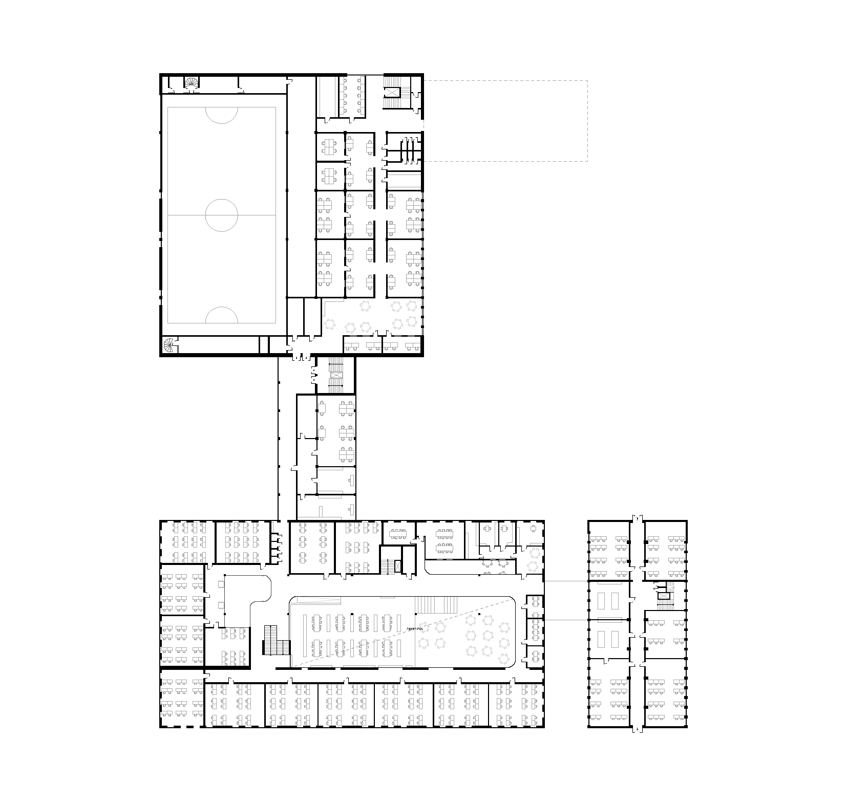
Plan 2.etg
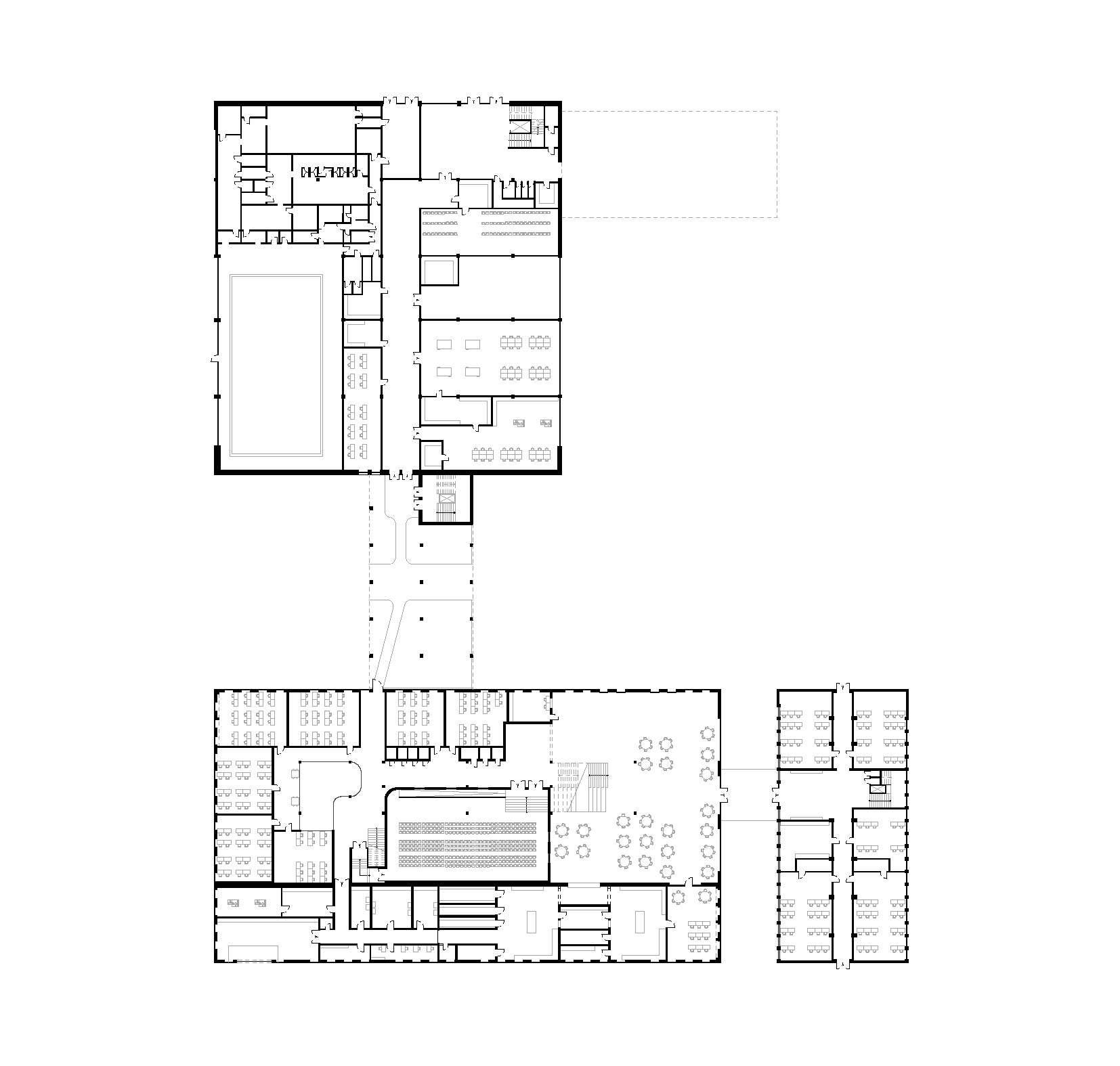
Plan 3.etg
Interiør
Tverrsnitt, Skole
Tverrsnitt, Skole
Eksteriør
Type prosjekt: Videregående skole mm.
Sted: Blindern VGs, Ullevål, Oslo
Semester: Vår 2023

