Tårnparken Bofellesskap
Området i kontekst
Fabrikken, 1920
Økern er en sentral del av Hovinbyen, Oslos største byutviklingsprosjekt. Fram til 1992 blomstret Standard Telefon og Kabelfabrik på Økern, men i dag fremstår området fragmentert. Planen er å omgjøre den tidligere fabrikk tomten til et levende knutepunkt ved å transformere bygningene med fokus på aktive førsteetasjer og nye leiligheter.
Konstruksjon
Prosjektet består av limtredragere- og søyler samt CLT-dekker. Designet legger vekt på horisontale linjer med innfelte balkonger som gir dybde og karakter. Vårt co-living-konsept inkluderer fellesarealer hvor beboerne kan klatre, fikse syklene sine og trene m.m.
Program
Kabelgata
Industribygget fra 1930 og utvidelsen fra 1937, transformeres med fokus på aktive førsteetasjer og nye leiligheter i form av et påbygg. Disse bygges i tre etasjer over den sørlige halvdelen av industribyggene, for å bevare den gule-listede fasaden og solforholdene i Kabelgata. Den sørlige fasaden derimot redesignet for å skape større åpenhet mellom virksomhetene og Tårnparken, samt utnytte de gode solforholdene bedre.
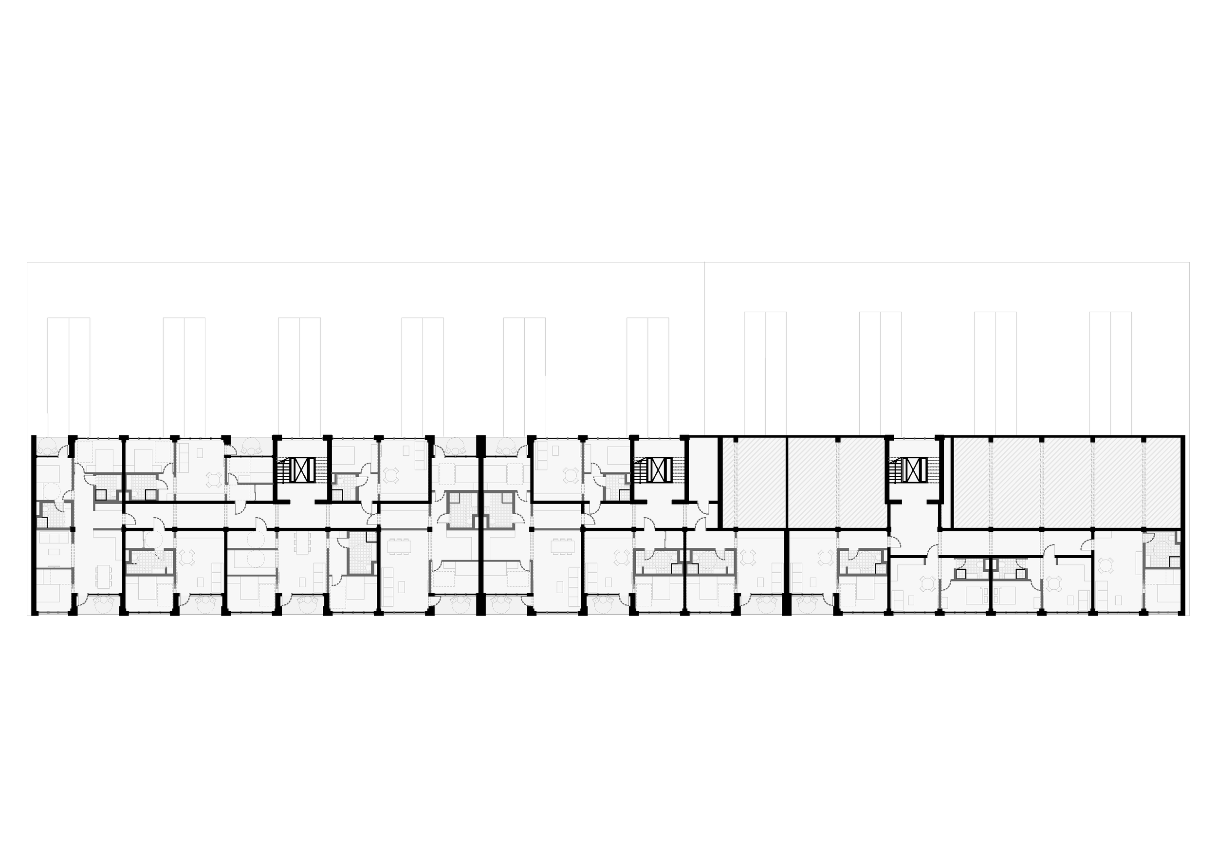
Plan 1.etg
Plan 2.etg
Plan 3.etg
Plan 4/5. etg
Snitt
Co-living
Detalj
Balkong
Soverom
Modell
Tårnparken fremhever det historiske PEX-tårnet og tilbyr en grønn oase for lokalsamfunnet. Denne gjennomtenkte blandingen av gammelt og nytt skaper et unikt og levende miljø som gjør Økern til et fremtredende utviklingsprosjekt i Oslo.
Samarbeidspartner: Theodor Daniel Buras
Type prosjekt: Bofellesskap & Næring
Sted: Økern, Oslo
Semester: Vår 2024
Situasjonsplan

